Закрыть меню
© Sea Inside 2019-2023

New Village Villas — Эксклюзивный коттеджный комплекс. Батуми. Хелвачаури

Оставить заявку
https://i0.wp.com/sea-inside.net/wp-content/uploads/2025/09/whatsapp-image-2025-09-12-at-13.48.03-4.jpeg?fit=1280%2C960&ssl=1
от
1667 ?>
$/м²
USD
GEL
RUB
Green Side Construction

О ПРОЕКТЕ New Village Villas

Хелвачаурский муниципалитет
GE
Срок сдачи: 2025 год
от
1667
$/м²
USD
GEL
RUB
1667

New Village Villas — эксклюзивный коттеджный комплекс недалеко от курорта Гонио: тишина, природа и живописное расположение на склоне с видом на море, горы и ночной Батуми через панорамные окна и террасы. Планировка ориентирована на свет и простор: около 180 м² с большим холлом, открытой кухней, тремя спальнями, двумя ванными комнатами и открытым пространством с выходом на широкую террасу; у каждой резиденции свой участок с бассейном, парковкой и зоной отдыха. Дома сдаются «под ключ» с дизайнерским ремонтом, европейской мебелью и техникой, оснащены сплит-системами; управление берет на себя управляющая компания, ввод в эксплуатацию запланирован на четвертый квартал 2025 года.

Инфраструктура

5 минут до моря и пляжа Гонио с чистейшей водой и пальмовой набережной.

10 км до исторического центра Батуми с ресторанами и прогулочными зонами.

6 км до международного аэропорта Батуми (около 10 минут на машине).

12 км до грузино-турецкой границы (Сарпи) для быстрых поездок в Турцию.

В 1,6 км от крепости Гонио находится прогулочная зона и историческая достопримечательность римского периода.

1,1 км до новой объездной дороги для удобных съездов без городского трафика.

Преимущества

  • Великолепные виды: панорамные окна и террасы каждый вечер открывают возможность любоваться закатами, морским горизонтом и огнями Батуми ( панорамы ).
  • Сдача под ключ: дизайнерский ремонт, европейская мебель и техника, установлены системы отопления и кондиционирования ( виллы ).
  • Частная жизнь: частная территория с бассейном, зоной отдыха и парковкой, а также обслуживание управляющей компанией.
  • Сроки и прозрачность: поэтапный план строительства с новостями со строительной площадки и гарантированный ввод в эксплуатацию в четвертом квартале 2025 года.
  • Гибкие условия покупки: рассрочка до 18 месяцев с предоплатой 30%, фиксация цены на период оплаты; при полной оплате возможна скидка.
Поделиться

ИНФРАСТРУКТУРА New Village Villas

Количество этажей
3
Этап строительства
Сдача: 2025 год
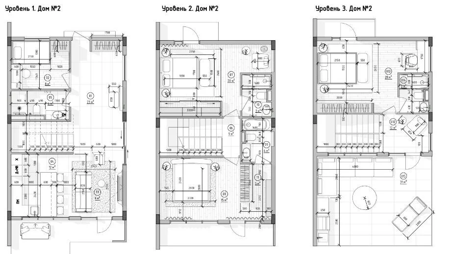
Площадь вилл
от 162,5 м² до 195 м²
Вид из окон
на горы и море
Отделка
Под ключ
Технология строительства
Монолитно-каркасная
Форма оплаты
Беспроцентная рассрочка / 100 % оплата
Подобрать апартаменты
Получить презентацию

ВАРИАНТЫ
ПЛАНИРОВОК New Village Villas

Тип
Таунхаус
Этаж
1-3
Вид
горы, море
Площадь
195
Цена
$‍‍325 000
Цена/м²
$‍1 667 / м²
Подробнее
Получить презентацию
Тип
Вилла
Этаж
1-2
Вид
море,горы
Площадь
162,5
Цена
$‍‍325 000
Цена/м²
$‍2 000 / м²
Подробнее
Получить презентацию
Альберт Вахритдинов
Эксперт по недвижимости в Грузии
УЗНАЙТЕ ВСЁ У ЭКСПЕРТА
Мы являемся единственной компанией на рынке, которая предоставляет самый большой выбор недвижимости и проводит анализ ликвидности каждого объекта. Специалисты Sea Inside знают, как безопасно Вам приобрести апартаменты мечты и получать с них высокий доход.
Альберт Вахритдинов
Эксперт по недвижимости в Грузии
Связаться с экспертом
Начать чат

ОСОБЕННОСТИ АПАРТ-КОМПЛЕКСА New Village Villas

Безопасность 24/7
Закрытая территория с круглосуточной охраной и видеонаблюдением
Мир и тишина
Здесь не роскошь, здесь повседневность. Забудьте о городском хаосе; ваш новый дом — рай для релаксации, где каждый звук наполнен гармонией.
Жизнь без стресса
Забудьте о городской суете. Здесь каждый день дарит покой и радость, помогая вам сохранять душевное равновесие.
СВЯЗАТЬСЯ С ЭКСПЕРТОМ
ВАМ МОЖЕТ ПОНРАВИТЬСЯ

Он будет закрыт в 0 секунд